/ Tower Carrasco /

1 Dormitorio

Dirección:
Av. de las Américas 7775 CARRASCO Montevideo

Entrega Estimada:

Formato de Pago:


DESDE:
U$D 173000

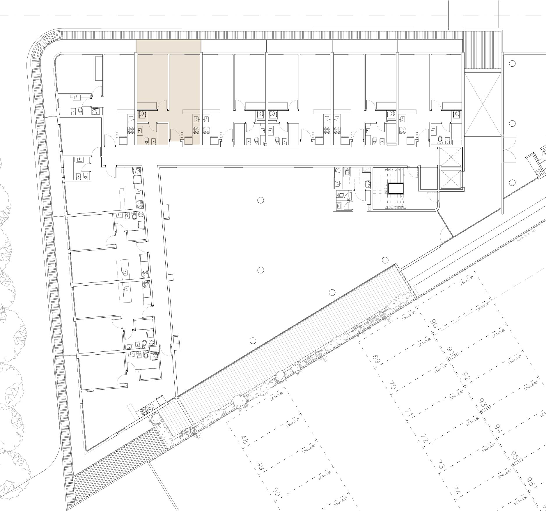
  • Unidades Disponibles 105 B, 205 B
  • Tipología TOZ5
  • Área privada 40,1 m2
  • Área común 4,9 m2
  • Área terraza 5,51 m2
  • Área jardín 0,0 m2
  • Área total 50,6 m2
  • Vista Frente
El área privada incluye el 100% de los espacios interiores, muros exteriores, muros interiores, y muros separativos de áreas comunes, el 50% de muros separativos entre unidades y el 100% de ductos internos de la unidad.Se incluyen también los metrajes de las terrazas principales, y de servicio. El área privada no corresponde el área según plano de mensura. Las áreas comunes corresponden al porcentaje de palier en relación proporcional al área privada de cada apartamento que accede por el mismo.Las dimensiones y contenidos corresponden al permiso municipal y están sujetas a posibles variaciones. La empresa podrá realizar variaciones sin notificación previa de orden estético, funcional o reglamentario, tanto de espacios comunes o propios, siempre dentro de los estipulado por las normativas vigentes. El equipamiento es indicativo y se representa en los gráficos solo a título informativo.
whatsapp